Wymiary boiska do siatkówki halowej to temat, który budzi wiele pytań, zarówno wśród początkujących graczy, jak i tych, którzy chcą zgłębić tajniki tej dyscypliny. W tym artykule szczegółowo opiszę standardowe wymiary boiska, wysokość siatki, oznaczenia stref, a także porównam je z siatkówką plażową, dostarczając kompletnych informacji dla każdego zainteresowanego. Jako Daniel Kwiatkowski, postaram się przedstawić te dane w przystępny i praktyczny sposób, bazując na oficjalnych przepisach.
Wymiary boiska do siatkówki: Od podstawowych 18x9 m do szczegółów stref i siatki
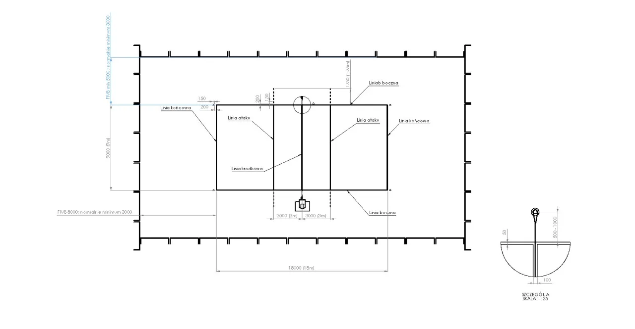
- Standardowe boisko do siatkówki halowej ma wymiary 18 metrów długości i 9 metrów szerokości.
- Wysokość siatki wynosi 2,43 m dla mężczyzn i 2,24 m dla kobiet, z różnicami w kategoriach młodzieżowych.
- Boisko jest podzielone liniami o szerokości 5 cm, wyznaczającymi m.in. strefę ataku (3 metry od siatki) i pole serwisowe.
- Wolna strefa wokół boiska to minimum 3 metry, a wolna przestrzeń nad nim to co najmniej 7 metrów.
- Boisko do siatkówki plażowej jest mniejsze (16x8 m), nie posiada linii środkowej ani ataku, a jego nawierzchnią jest piasek.
Kluczowe wymiary boiska do siatkówki
Podstawa każdej gry: Długość i szerokość pola
Zacznijmy od fundamentów. Standardowe boisko do siatkówki halowej to prostokąt, który, zgodnie z międzynarodowymi przepisami, ma 18 metrów długości i 9 metrów szerokości. To podstawowy wymiar, który każdy gracz i organizator powinien znać. Z mojego doświadczenia wiem, że precyzyjne wyznaczenie tych wymiarów jest kluczowe dla sprawiedliwej i zgodnej z zasadami gry.
Idealny kwadrat: Czym charakteryzuje się połowa boiska?
Boisko jest podzielone na dwie równe połowy przez linię środkową. Każda z tych połówek stanowi idealny kwadrat o wymiarach 9 metrów długości i 9 metrów szerokości. Ta symetria jest istotna, ponieważ zapewnia równe warunki gry dla obu drużyn i ułatwia orientację na boisku, co jest szczególnie ważne podczas dynamicznych akcji.
Co to jest "wolna strefa" i dlaczego jej wymiary rosną na zawodach FIVB?
Oprócz samego pola gry, niezwykle ważna jest również tak zwana "wolna strefa". Jest to przestrzeń otaczająca boisko, która musi być wolna od wszelkich przeszkód. Standardowo, minimalna szerokość wolnej strefy wynosi 3 metry z każdej strony linii bocznych i końcowych. Jednak w oficjalnych zawodach Międzynarodowej Federacji Piłki Siatkowej (FIVB) wymagania te są znacznie wyższe, aby zapewnić bezpieczeństwo i komfort zawodników oraz umożliwić swobodne poruszanie się poza boiskiem. Na takich turniejach wolna strefa musi wynosić minimum 5 metrów od linii bocznych i 6,5 metra od linii końcowych. Dodatkowo, nad polem gry musi znajdować się wolna przestrzeń o wysokości co najmniej 7 metrów, a w zawodach FIVB nawet 12,5 metra. To pokazuje, jak duży nacisk kładzie się na zapewnienie optymalnych warunków do gry na najwyższym poziomie.

Linie na boisku do siatkówki
Linia środkowa: Gdzie zaczyna się terytorium przeciwnika?
Linia środkowa to kluczowy element boiska, który dzieli je na dwie równe połowy, wyznaczając terytorium każdej z drużyn. Przebiega ona dokładnie pod siatką, a jej przekroczenie podczas gry może skutkować faulem, jeśli przeszkadza to przeciwnikowi. To właśnie ta linia jest punktem odniesienia dla wielu zasad, które regulują poruszanie się zawodników na boisku.
Strefa ataku: Kluczowe 3 metry od siatki i ich znaczenie
Strefy ataku są wyznaczone przez linie ataku, które znajdują się 3 metry od osi linii środkowej po obu stronach boiska. Te linie ograniczają obszar, w którym zawodnicy z linii obrony (czyli ci, którzy w momencie zagrywki znajdują się w pozycjach 1, 6 i 5) nie mogą atakować piłki, jeśli znajduje się ona powyżej górnej krawędzi siatki. Jest to fundamentalna zasada, która wpływa na taktykę gry i pozycjonowanie zawodników.
Pole serwisowe: Skąd legalnie można wprowadzić piłkę do gry?
Pole serwisowe, inaczej strefa zagrywki, to obszar, z którego zawodnik wprowadza piłkę do gry. Jest to 9-metrowy obszar za linią końcową boiska. Jego głębokość jest równa szerokości wolnej strefy. Zawodnik wykonujący zagrywkę musi znajdować się w tym obszarze w momencie uderzenia piłki, co zapewnia równe warunki dla wszystkich i zapobiega nieuczciwym przewagom.
Jedna zasada, 5 cm: Co łączy wszystkie linie na boisku?
Wszystkie linie na boisku do siatkówki halowej mają jedną wspólną cechę: ich szerokość wynosi dokładnie 5 cm. Muszą być one również w kolorze kontrastującym z nawierzchnią boiska, najczęściej białym. To ujednolicenie wymiarów linii jest niezwykle ważne dla czytelności gry i jednoznacznego określania, czy piłka wylądowała w boisku, czy poza nim. Jako Daniel Kwiatkowski, zawsze zwracam uwagę na precyzję oznaczeń, ponieważ ma to bezpośredni wpływ na płynność i sprawiedliwość meczu.
Siatka w centrum uwagi
Standardowa wysokość siatki: Dlaczego jest inna dla kobiet i mężczyzn?
Wysokość siatki to jeden z najbardziej rozpoznawalnych elementów siatkówki, który różni się w zależności od płci. Oficjalne wysokości siatki dla seniorów to:
- Dla mężczyzn: 2,43 m
- Dla kobiet: 2,24 m
Ta różnica wynika z fizjologicznych uwarunkowań i ma na celu zapewnienie optymalnych warunków do dynamicznej i atrakcyjnej gry dla obu płci. Z moich obserwacji wynika, że te standardy są doskonale dopasowane do możliwości zawodników.
Od młodzika do juniora: Jak zmienia się wysokość siatki w kategoriach wiekowych?
Wysokość siatki dostosowuje się również do wieku i rozwoju fizycznego młodych zawodników. Oto standardowe wysokości dla poszczególnych kategorii młodzieżowych:
- Młodzicy (chłopcy): 2,35 m
- Młodziczki (dziewczynki): 2,15 m
- Kadeci i juniorzy: 2,43 m
- Kadetki i juniorki: 2,24 m
Takie stopniowe zwiększanie wysokości siatki pozwala na harmonijny rozwój umiejętności i zapobiega kontuzjom, co jest kluczowe w pracy z młodzieżą.
Nie tylko wysokość się liczy: Jakie wymiary ma sama siatka?
Sama siatka również ma ściśle określone wymiary. Jej szerokość wynosi 1 metr, a długość waha się od 9,5 do 10 metrów, co pozwala na jej odpowiednie naciągnięcie między słupkami. Oczka siatki tworzą kwadraty o boku 10 cm. Te precyzyjne wymiary zapewniają, że siatka jest odpowiednio napięta i stabilna, co jest niezbędne dla prawidłowego przebiegu gry.
Antenki: Co wyznaczają te tajemnicze pręty na siatce?
Antenki to dwa elastyczne pręty, które są zamocowane pionowo po zewnętrznych krawędziach siatki, bezpośrednio nad liniami bocznymi boiska. Mają one 1,8 metra długości, z czego 80 cm wystaje ponad siatkę. Ich główną funkcją jest wyznaczanie bocznych granic przejścia piłki nad siatką. Piłka, która dotknie antenki lub przejdzie poza ich zewnętrzną krawędzią, jest uznawana za autową. To małe, ale niezwykle ważne elementy, które pomagają sędziom w ocenie poprawności zagrań.

Siatkówka halowa a plażowa: Różnice w wymiarach boiska
Mniejszy prostokąt: Jakie wymiary ma boisko na piasku?
Siatkówka plażowa, choć zbliżona w duchu do halowej, charakteryzuje się odmiennymi wymiarami boiska. Na piasku gra się na mniejszym prostokącie, który ma 16 metrów długości i 8 metrów szerokości. Ta mniejsza powierzchnia jest dostosowana do specyfiki gry dwuosobowej oraz trudniejszych warunków poruszania się po piasku, co sprawia, że każdy punkt jest efektem niezwykłej sprawności i taktyki.
Mniej linii, więcej swobody: Których stref brakuje w plażówce?
Jedną z najbardziej zauważalnych różnic jest uproszczony układ linii na boisku plażowym. W przeciwieństwie do siatkówki halowej, na piasku nie znajdziemy linii środkowej ani linii ataku. Brak linii środkowej wynika z braku rotacji i pozycji, a brak linii ataku z faktu, że wszyscy zawodnicy mogą atakować z dowolnego miejsca boiska. To daje graczom większą swobodę i dynamikę w poruszaniu się po piasku.
Taśma zamiast farby: Jak wyznacza się pole gry na plaży?
Wyznaczanie linii na piasku również różni się od tego w hali. Zamiast malowanych linii, boisko do siatkówki plażowej jest wyznaczane za pomocą specjalnych taśm o szerokości od 5 do 8 cm. Taśmy te są zakotwiczone w piasku, co zapewnia ich stabilność i widoczność. Jest to praktyczne rozwiązanie, które sprawdza się w zmiennych warunkach pogodowych i na niestabilnej nawierzchni.
Przeczytaj również: Jak zostać siatkarzem? Od marzeń do zawodowstwa pełny przewodnik
Różnice w nawierzchni: Od parkietu po głęboki piasek
| Siatkówka halowa | Siatkówka plażowa |
|---|---|
| Nawierzchnia musi być płaska i jednolita. W oficjalnych rozgrywkach FIVB dozwolona jest tylko nawierzchnia drewniana lub syntetyczna, zapewniająca odpowiednią amortyzację i przyczepność. | Nawierzchnię stanowi piasek. Na zawodach FIVB piasek musi mieć głębokość co najmniej 40 cm i być całkowicie pozbawiony kamieni, muszli czy innych ostrych elementów, aby zapewnić bezpieczeństwo i komfort gry. |
